Депутатська комісія з питань промисловості, будівництва, підприємницької діяльності, побутового, торговельного обслуговування та регуляторної політики на чолі з Денисом Терещенком зібралась 6 травня, аби розглянути плани забудови міста.
Заслухали доповідь розробника детальних планів, головного архітектора Сергія Сазонова щодо кількох ділянок землі у Кременчуці. Якщо по двох пунктах, де передбачається звести об’єкти нежилої інфраструктури, питань у депутатів не виникло, то з проєктами житлових будинків все набагато складніше.
Ділянка по вул. Небесної Сотні, 53
Власне, тут під багатоповерхову забудову планують використати дві ділянки загальною площею 1,96 гектара. Очікується зведення трьох 9-ти поверхових секцій комплексу на 328 квартир. Здається, все гаразд, але… Згідно з Державними будівельними нормами (ДБН), площа прибудинкової території обчислюється залежно від кількості людей, які проживатимуть в будинку. У плані забудови кількість майбутніх мешканців комплексу суттєво занижена. Так, очікувана кількість мешканців становить 328 осіб – тобто, по одній людині на кожну квартиру.
До того ж проєктом передбачається усього 42 парковочних місця, що виглядає дещо дивним.
{banner_google}
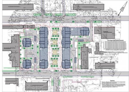
Ділянка на перехресті вулиць Пушкіна та Першотравневої

Ситуація навколо цієї забудови ще цікавіша. Якщо раніше на бульварі Пушкіна планували побудувати дві секції на 12-16 поверхів, то зараз на площі 1,1 гектара планують звести 9 житлових секцій на 216 квартир. Слід зауважити, що максимально дозволена щільність людей становить 500 осіб на гектар, а тут передбачається 800, про що слушно нагадав голова комісії пан Терещенко.
Є питання і до тимчасової парковки, яка розміститься на вулиці Першотравневій.
А щодо бульвару Пушкіна – він просто зникне, перетворившись на звичайний прохід між будинками. На планах цієї території чітко видно різницю:


Одноголосним рішенням комісії план відправили на переробку. Основна вимога – залишити бульвар недоторканним.
{banner_google}
Ділянки на перехресті вулиць Академіка Маслова та Івана Мазепи і на вул. Софіївській

На перехресті вулиць Академіка Маслова та Івана Мазепи на території площею 0,26 гектару планують побудувати дев’ятиповерховий житловий будинок. При тому, що максимально дозволена етажність для такої території складає 5 поверхів.
Проєкт відправили на переробку у зв’язку з очевидними порушеннями. Депутати наголосили, що це питання напряму стосується комфорту проживання у місті, тож ніяких компромісів бути не може.
Ті самі зауваження виникли й при розгляді наступного проєкту по вулиці Софіївській. Тут на ділянці такого ж розміру забудовник планує звести цілі дві дев’ятиповерхові секції. Про облаштування нормальної прибудинкової території не йдеться, ба більше – поруч з майбутніми багатоповерхівками розташовані одноповерхові будинки.
Цей проєкт також відправили на переробку у зв’язку з порушеннями норм ДБН.