9 жовтня виконком Кременчуцької міської ради провів відкриті торги з особливостями на закупівлю лазне-прального комплексу, а 16 жовтня визначив переможця — ТОВ «Дормаш груп» та оприлюднив повідомлення про намір укласти договір. Конкурентів у цієї фірми не було. У системі Prozorro є інформація про низку запитань від потенційного учасника торгів, а також відповіді замовника. Але цей зацікавлений суб’єкт так і не подав документи на тендер. Нагадаємо, під час воєнного стану відкриті торги вважаються такими, що відбулися, навіть якщо на них приходить лише один учасник. Ціна лазне-прального модуля ДС-01-М1 від ТОВ «Дормаш груп» складе 1 млн 870 тис. грн.
Учасник торгів не новачок і вже виконав два договори з Кременчуцькою міською радою на поставку аналогічного товару (у 2022 та у 2023 роках). Востаннє виконком купив у ТОВ «Дормаш груп» два мобільних лазнево-пральних комплекси ДС-01-М.

Тоді ціна за одиницю товару склала 2 млн 88 тис. грн. Як бачимо, ціна нової модифікації ДС-01-М1 на 218 тис. грн дешевше. Можливо, ціну знизили після наших публікацій.
Нагадаємо, раніше «Телеграф» детально аналізував закупівлі лазень-пралень для військових. Ми звернули увагу на те, що у Prozorro цей товар купували від 527 тис. грн. А також знайшли інформацію про ціну від виробника у Броварах. Мобільний лазневий комплекс (його може тягти позашляховик) коштує приблизно 660 тис. грн, а великий (для розміщення на вантажному причепі) приблизно 1,1 млн грн. Звісно, може бути різниця у ціні обладнання, яке використовується (пральні машини, сушарки, бойлер та інше). Але в цілому товар, який купував виконком, був удвічі дорожчим, ніж ми знайшли в Україні.
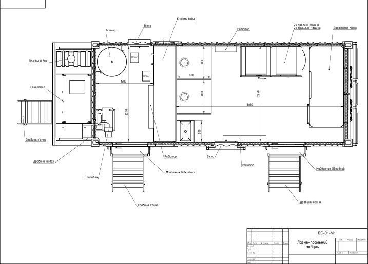
Мерія Кременчука купувала лазні-пральні у двох кременчуцьких фірм — ТОВ «Дормаш груп» та ТОВ «Житлоінвест». Цікаво, що вони жодного разу не були конкурентами на тендерах. Ми також аналізували тендерну документацію і дійшли висновку, що виконком (у кожному конкретному випадку) підганяв її саме під цих учасників. Зокрема тендерна документація відкритих торгів, які провели 8 лютого, містила навіть марку конкретного товару від ТОВ «Дормаш груп» — «Мобільний лазнево-пральний комплекс ДС-01-М», а технічний опис предмета закупівлі — марки комплектуючих конкретних виробників. У новій тендерній документації надмірної деталізації немає. Але, на нашу думку, замовник усе ж не до кінця провів роботу над помилками. І знову спалився на прихильності до конкретного виробника. Цього разу в тендерній документації з’явився новий додаток — схема розміщення обладнання у лазне-пральному модулі.

І ця схема (впритул до розміщення написів-виносок) — точна копія ескізу, який надало ТОВ «Дормаш груп» у складі своєї тендерної пропозиції. Різниця лише в тому, що на заводському ескізі є назва моделі.

Термін поставки товару, як і в попередніх закупівлях лазень-пралень, дуже короткий. Станом на 16 жовтня договір ще не підписаний, натомість товар має бути поставлений до 25 жовтня.
ТОВ «Дормаш груп» зареєстроване у Кременчуці. Керівником підприємства є Котляр Віталій Юрійович, депутат Кременчуцької міської ради. Він же був кінцевим бенефіціарним власником ТОВ «Дормаш груп» до 2020 року. Наразі цим власником є Котляр Тетяна Олексіївна. За даними аналітичної системи YouControl, яка акумулює дані відкритих державних реєстрів, близнюк української фірми ООО «Дормаш групп» (діюче станом на сьогодні) зареєстроване з 2014 року в російському Бєлгороді, а його учасником є громадянин України Котляр Віталій Юрійович. Раніше ми знайшли підтвердження цієї інформації і в російському реєстрі. Відповідно до урядових постанов, що діють під час воєнного стану, забороняється ввезення товарів з рф; заборонені публічні закупівлі товарів, робіт і послуг у громадян та юридичних осіб з РФ або в українських фірм, кінцевим бенефіціарним власником чи учасником з часткою понад 10% яких є РФ чи її громадяни. Проте російське ООО «Дормаш груп» не є учасником кременчуцького ТОВ «Дормаш груп»: юридично фірми не пов’язані капіталом, хоча за бізнесом стоїть одна й та сама особа. І формально замовник нічого не порушує, підписуючи угоди з директором підприємства, який під час війни має зареєстрований бізнес у росії. У цьому випадку законодавчих обмежень немає.
Як ми писали раніше, Держаудитслужба знайшла порушення на тендері при закупівлі виконкомом мобільних лазнево-пральних комплексів у ТОВ «Житлоінвест». Замовник безпідставно відхилив пропозицію, яка була на 420 тис. грн дешевшою. Проте аудит обмежився письмовими зауваженнями, а не санкціями.
За інформацією з Prozorro, у 2022-2023 роках виконком Кременчуцької міськради закупив для військових 20 мобільних лазень-пралень на загальну суму 48,65 млн грн.
11 жовтня також уклали прямий договір з ТОВ «Житлоінвест» на закупівлю пересувного мобільного холодильно-морозильного комплексу для зберігання продуктів з автономним джерелом живлення. Вартість товару склала 1,68 млн грн. Договір оприлюднений, але він не містить специфікації, комплектація товару невідома.