25 мая в кременчугском лицее №4 провели «первую инвентаризацию» по проекту усовершенствования двора учебного заведения в рамках программы «Мрій, грай, дій», о которой уже ранее писал «Телеграф».
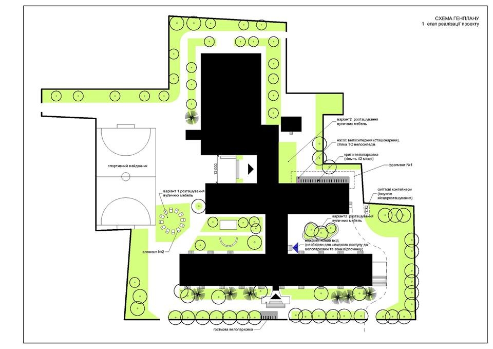
Как сказала директор лицея №4 Любовь Михайлик, детскую территорию должны создавать сами дети, чем и занимается сейчас команда лицеистов. На мероприятии 25 мая ученики рассказали о своих грандиозных планах, которые разбиты на 3 этапа. Сейчас в работе 1 этап: разработка и установка велостоянки, а также онлайн-борьба с другими желающими со всей Украины за бесплатную установку велосипедной СТО. Чтобы поддержать лицей №4 проголосуйте здесь.

В целях облагораживания двора учебного заведения ученики собираются самостоятельно сконструировать мебель из паллетов (поддонов). Их в лицей №4 уже доставили. Теперь ученики их разберут на составляющие и сделают стулья и скамейки, которые покрасят в разные цвета.
В планах у учеников, да и у педколлектива, установка камер наружного наблюдения, обустройство теннисного корта, реконструкция небезопасной стены из стеклянных блоков… Планов настолько много, что руководство уже задумывается над увеличением территории лицея №4.
На мероприятии присутствовали представители от ПАО «Кременчугский завод дорожных машин» и ПАО «Крюковский вагоностроительный завод». Также посетил лицей №4 депутат горсовета Николай Порицкий, чей сын здесь учится. Они остались после презентации для обсуждения технических деталей проекта для дальнейшей помощи лицеистам.
Напомним, что в рамках проекта «Мрій, грай, дій» ученики лицея №4 презентовали проект школы своей мечты, на реализацию которого немецкие партнеры предоставили стартовую материальную поддержку в размере 50 тыс грн. А дальше – дело за кременчужанами, которые могут поддержать данный проект, приняв участие во втором туре под названием Спільнокошт. На данный момент по программе собрано 18.5 тыс.грн.




