В Кременчуге появился новый 4-этажный дом по адресу – улица Мичурина, 68. Новостройка находится в тихом районе города – на Третьей Занасыпи, в лесопарковой зоне, в экологически чистом месте.
Видеообзор дома
Дом расположен в тихом месте, район окружен сосновым лесом, рядом озерцо, чистый воздух, вдали от городской суеты. До центра города 5 минут автомобилем, 8-10 минут общественным транспортом. В шаговой доступности расположены детские сады, школа. Неподалеку продуктовые и продовольственные магазины. Есть очень уютные квартиры с удобной планировкой.
Стоимость квартир – от 432 800 гривен
В новой четырёхэтажке можно приобрести 2-х и 3-комнатные квартиры различной планировки и квадратуры. На первом этаже находится пять жилых помещений, на втором и третьем – по три, на четвертом – четыре.
Более детально о квадратуре смотрите в таблице:
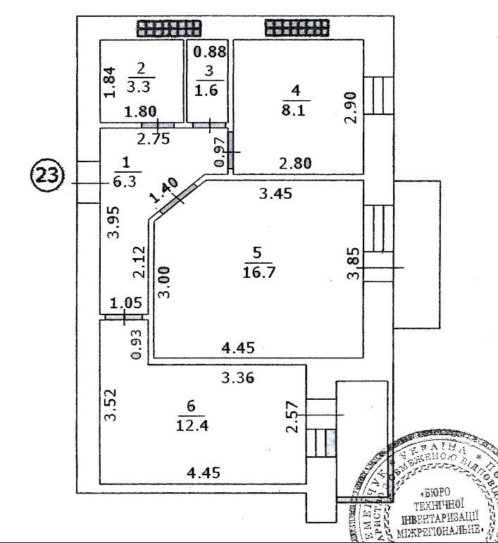
Пример планировки 2-комнатной квартиры за 432 800 гривен:
Это жилое помещение уже с ремонтом. Площадь – 54, 1 кв.м. В квартире установлен индивидуальный газовый счетчик, счетчики на воду, сантехника.


Более детально о каждой квартире в новом доме вы можете узнать на сайте BUDcapital, или, позвонив менеджеру
по продаже:
067-530-48-90
044 337 22 77
044 337 94 94



